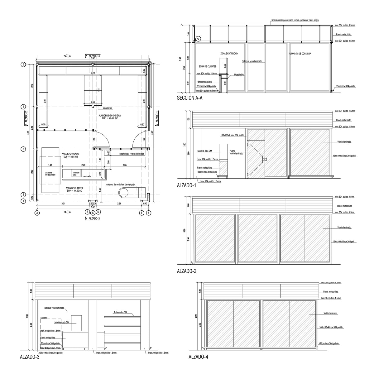
Consigna de equipajes

Descripción: Consigna de equipajes en la nueva terminal del Aeropuerto de Alicante. Realizada mediante estructura de acero, perfiles de acero inox y vidrio, se lleva a cabo la preparación en taller para proceder a su montaje en seco mediante ensamblaje y tornillería en obra.

En colaboración con Vicente Sellés Martínez.

Ubicación: Aeropuerto de Alicante – España.